济南公交维修保养车间升级改造

项目简介

    • 项目面积:1200平方米
    • 项目地点:山东济南
    • 项目简介:《济南公交集团维修保养车间提升工程》由卓一设计全权负责,以环保低排和以人为本的先进理念,在原有老旧车间的基础上,重新对公交集团的车间整体形象进行改造升级,升级后的车间和办公区域,无论是企业文化体现、企业员工关怀,还是制度管理上有巨大的飞跃,成为业内新标杆
    • 项目内容:办公区、车间区域改造装修升级、设备升级等
    • 改造周期:90天

项目概要

  • 1200

    项目面积

  • 900

    车间面积

  • 300

    办公区

  • 90

    升级工期

装修实景图

施工过程

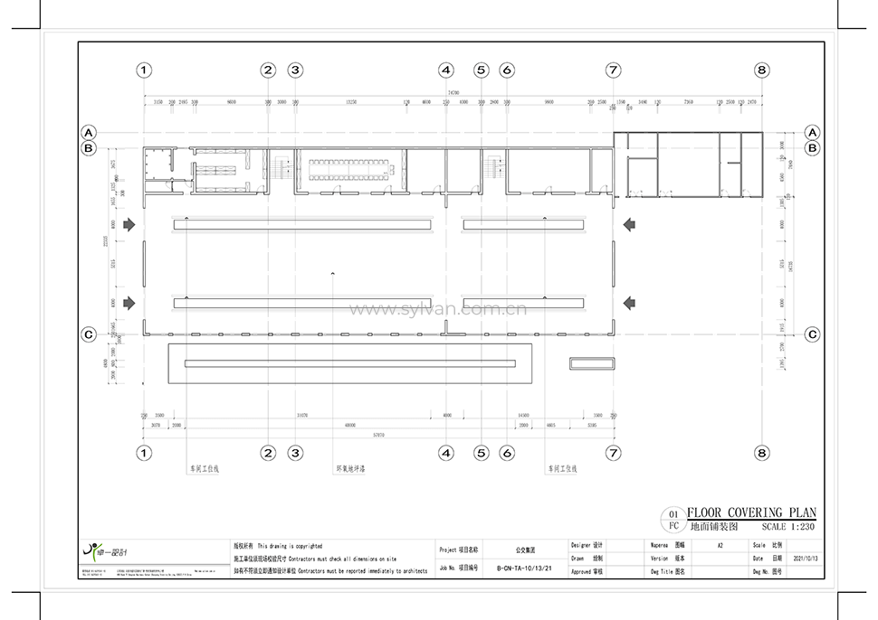
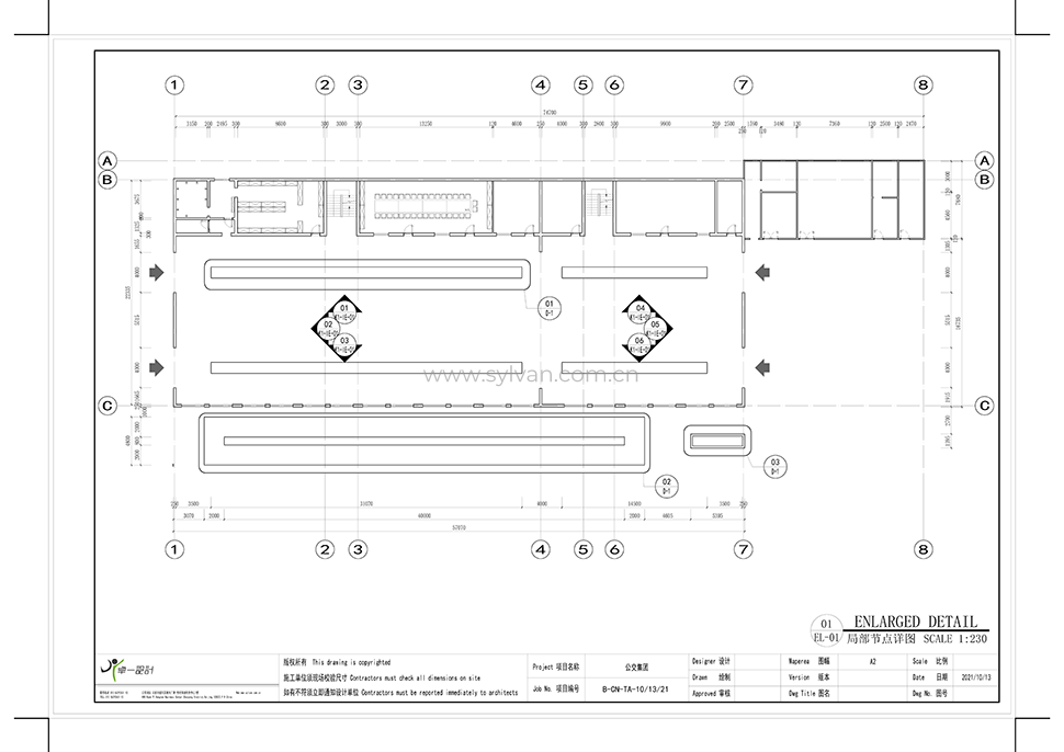
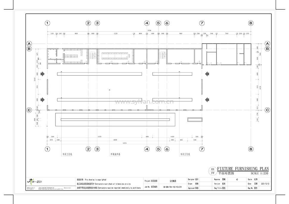
施工图

    文化系统

    设备配套